Cart 中文
MINGRONG
Professional Manufacturer for High & Low Voltage Fuses and Fusegears Combined Electrical Appliance

Product Center

>> Home / Product Center / Fuse disconnecting switches
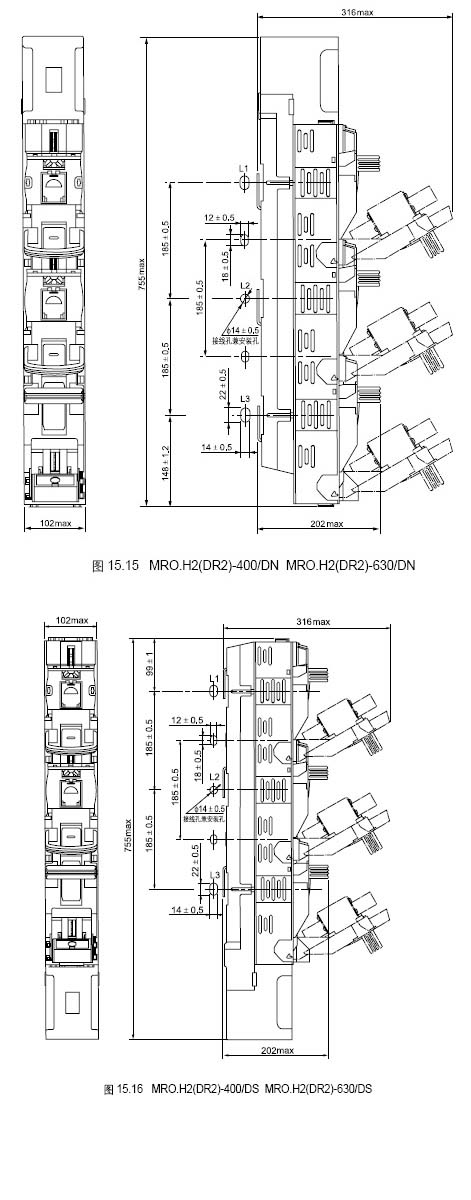
MRO.H2(DR2)-400/DN
 

About Mingrong

 

News and media

 

Products and Services

 

Support

 

Jobs

 

Contact Us

  Copyright © Zhejiang Mingrong Electrical Protection Co., Ltd All Rights Reserved